The Broad Behavioral Lab is a research facility designed to conduct cutting-edge research on how people make decisions and interact in a range of settings, from the workplace to the marketplace. The Lab allows Broad researchers to pursue MSU’s mission of advancing knowledge and transforming lives to expand human understanding and make a positive difference.
The Broad Behavioral Lab is located in Eppley Room 4, on the ground level. From the entrance to the Broad complex on Bogue, turn left. From the ground level passage from the Minskoff Pavilion, turn right. Walk past the bathrooms and classrooms, and through the double door into Eppley. Once you’re in Eppley, turn left and the lab entrance is the first door on your left.
Participants in Broad’s Behavioral Lab are an important part of the scientific community because they help researchers answer important questions about how people work, make decisions, and interact with each other.
The Lab conducts a wide variety of different research studies. In one study, you might make decisions about which products to buy or how to invest your money. In another study, you might interact with other people to negotiate a deal or develop a new business plan.
Most studies conducted in the lab are surveys and behavioral tasks, such as making decisions or working with others to brainstorm ideas. You’ll be able to see a basic description of all studies on our SONA website before you sign up, so you’ll know exactly what you’re getting into.
Yes! Almost all studies conducted in the lab will be compensated with course credit.
If you know you’re going to be late for a study, please contact the researchers listed on the study’s page in Sona. Depending on the study, being late might disqualify you from participating.
If you’re unable to attend a study you signed up for, please contact the researchers listed on the study’s Sona page and let them know. We ask that you cancel your sign up in Sona before the cancellation deadline (which varies by study), to avoid being counted as an unexcused no-show (see next question).
The lab has a limit of 2 “unexcused no-shows” per semester. You will be marked as an unexcused no-show if you do not attend a study you signed up for, and do not cancel your sign up or contact the researcher beforehand explaining why you can’t make it. Once you have 2 unexcused no-shows, your Sona account will be automatically deactivated for the remainder of the semester and you will not be able to sign up for studies. If you are in a course with a research requirement, this means you will need to write research papers to satisfy the requirement.
As a research participant, you have the rights to be treated ethically and respectfully, to be informed of the nature of the study, and to withdraw your participation at any time. All studies conducted in the lab are reviewed and approved by MSU’s Institutional Review Board, and researchers are required to obtain informed consent from participants before every study.
Researchers must first request physical access to the lab before reserving or using the lab. Please use the link below to request access.
Once you have been granted access, you will be able to enter the lab with your SpartanCard. There is a keycard reader next to the lab entrance. Authorized researchers can access the lab 24 hours per day with their SpartanCard (but you must have a reservation to use the lab)
If you would like to reserve one or more of the lab spaces, please check availability on the lab calendar in Outlook by searching for the shared calendar: Broad.BCC.E4. Once you identify available dates and times, send a reservation request to Sue Polhamus (polhamus@broad.msu.edu) and Andrea Bates (batesan4@broad.msu.edu). They will add your reservation to the lab calendar and send a confirmation.
If you reserve the lab and your plans change, you must cancel your reservation in Outlook at least 24 hours before the start of your reservation (and ideally more). Unused lab reservations will be tracked and lab privileges may be revoked for repeated violations of the reservation policy.
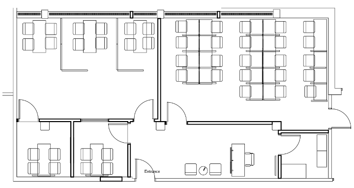
The lab has three types of rooms that can be configured to meet the needs of specific studies (see floor plan below).

There are seven high-resolution ceiling-mounted cameras throughout the lab complex with 360-degree viewing angles. Cameras are connected to a server with camera control and video storage capabilities.
In addition, the lab has a reception area to greet participants. The reception desk has a desktop computer. There is also a storage room with locked cabinets where researchers can temporarily store study materials while they run their studies. The storage room has a freezer maintained at -20C to store biospecimens.

The lab is designed to be flexible. Studies could be related to individual (e.g., managerial, consumer) decision-making, small teams, interview studies, etc.
Note that all research conducted in the lab must be approved by MSU’s IRB.
Faculty and PhD students in the Broad College may reserve and use the lab.
Faculty and PhD students must request access to the lab before their SpartanCard will unlock the lab door
The lab is available 24 hours per day for those with keycard access.
The lab is available by reservation only.
Please check E4 Lab calendar in Outlook for availability.
A researcher can reserve the any one room in the lab for no more than 40 hours per month.
Additional time may be reserved no more than five days in advance if the lab is available
The lab may be reserved on a first-come, first-served basis.
Researchers are granted access to lab network drive folders when they are granted physical access to the lab. Each computer in the lab has its own folder, and researchers may put or retrieve files from those folders from anywhere they have internet access.
Researchers may store study materials in the lab while their study is running but must remove all materials when the study closes (i.e., at the end of the lab reservation).
Any materials left in the lab after a study closes will be discarded or will become the property of the lab.
Policy violations will be reviewed and may result in lab privileges being revoked.
Researchers are responsible for any damages to lab furniture and equipment during their reservation. Costs associated with repairing damage or replacing equipment will be charged to the faculty research budget or the faculty member’s department.